אנו משתמשים בעוגיות לשיפור חוויית המשתמשולניתוח נתוני גלישה
קבל/י
דחה/י
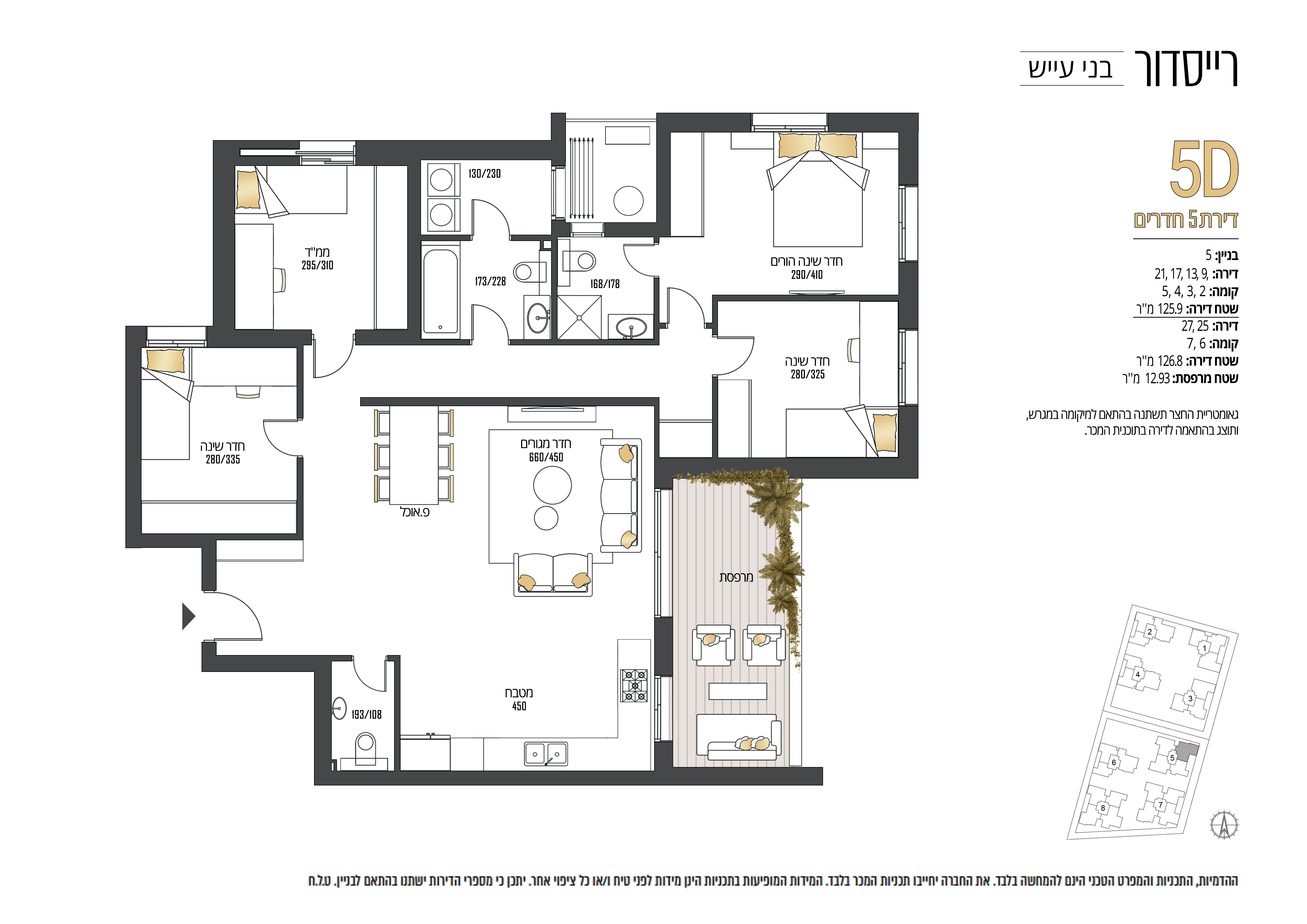
רייסדור בני עייש תוכניות
ווטסאפ מהיר
סריקה
להקמת הזמנה דיגיטלית
כפתורי שיתוף
SMS
התקשר אל:
סגירה
×
שליחת ההזמנה ב Whatsapp
לשליחת ההזמנה - הקלד את טלפון היעד, כולל קידומת מדינה
טלפון :